Indholdsfortegnelse
Fra Hans Møllers 'master' til hæfte '23 lokalhistoriske artikler fra Mårslet sogn' Side 46.
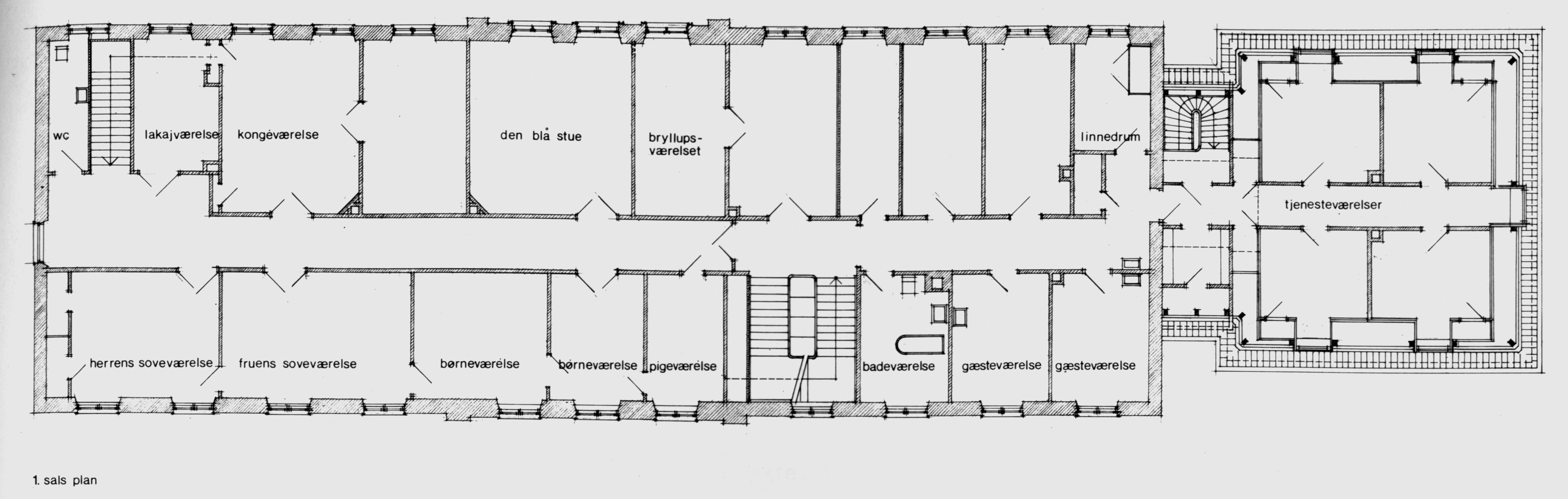
Grundridt taget fra Århus Kommunes dispositionsplan fra 1975 'Historie og fremtidge anvendelsesmulighedr - Vilhelmsborg' SE nedenfor.